Piso con Terraza Privada en Finca Regia para Reformar en L’Antiga Esquerra de l’Eixample
- €735,000
Descripción
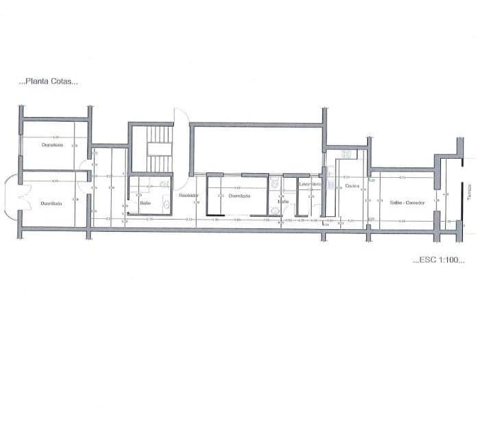
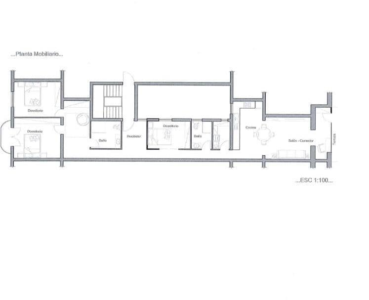
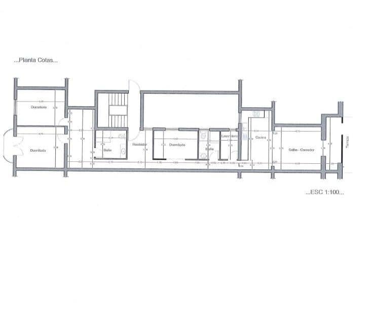
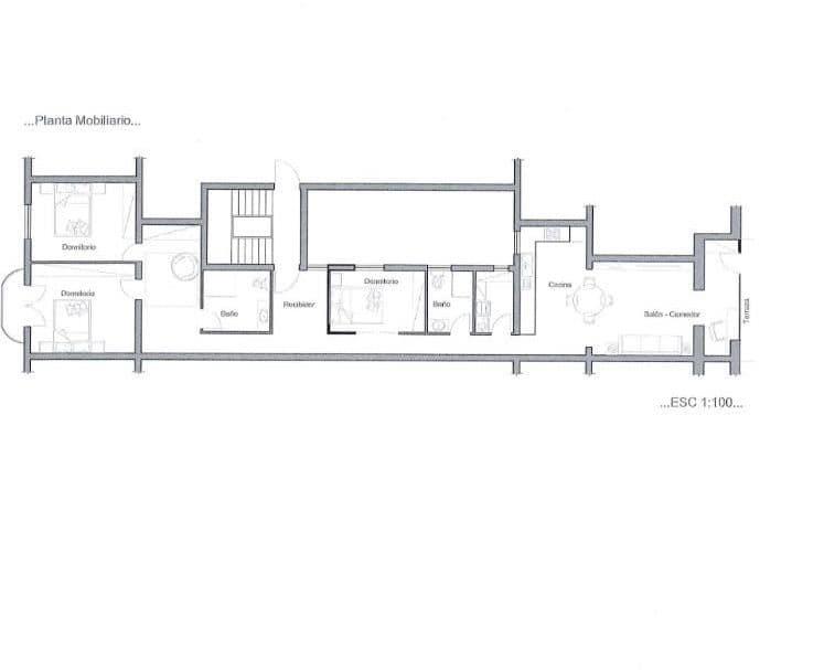
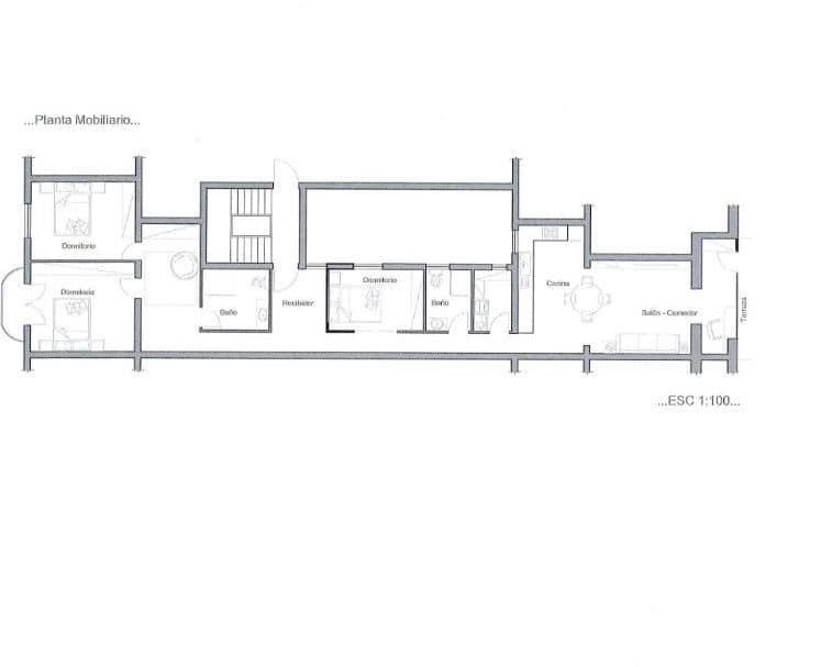
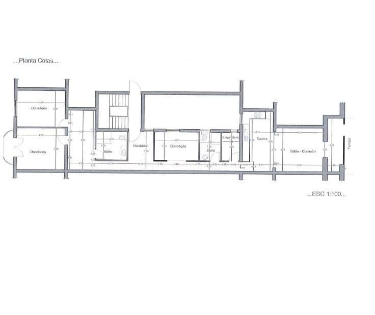
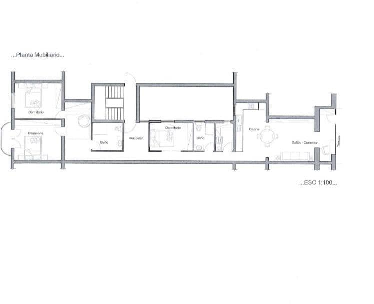
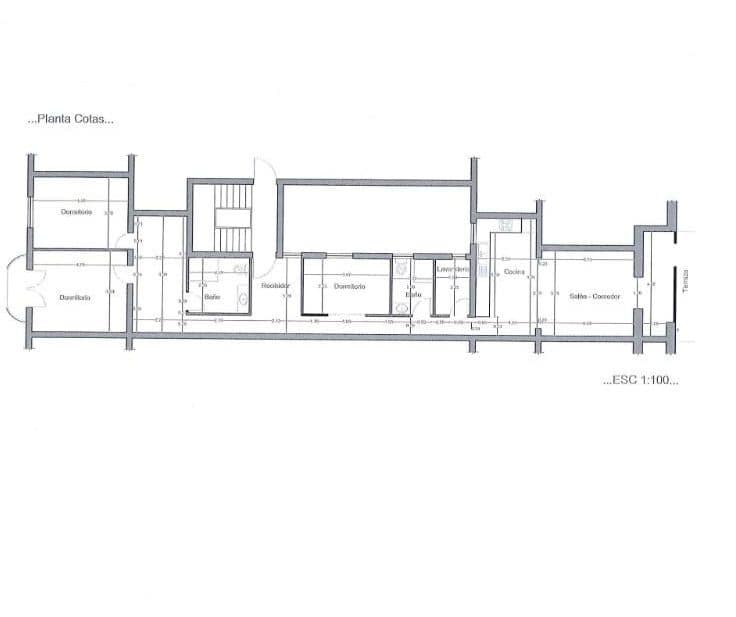
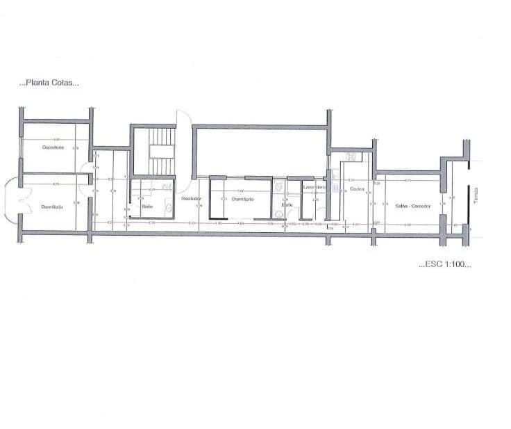
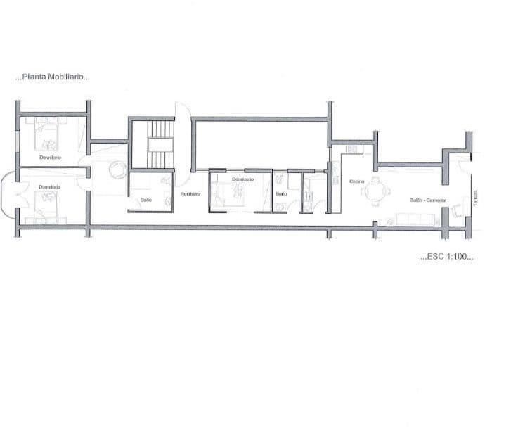
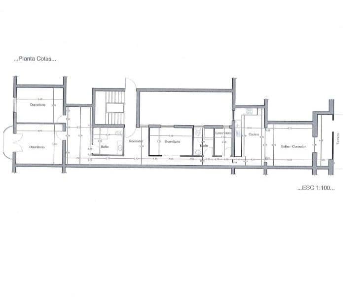
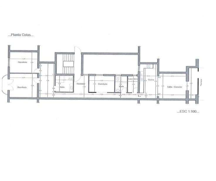
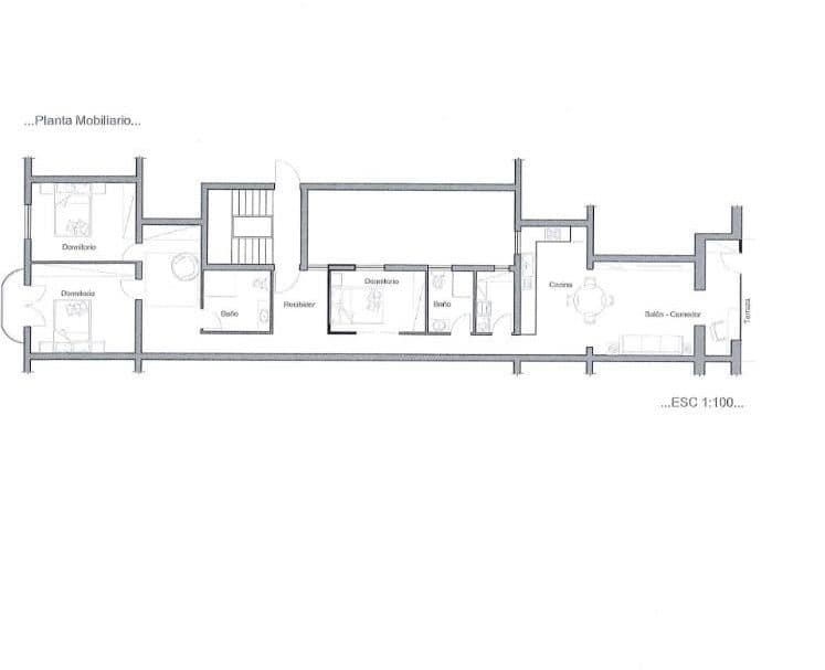
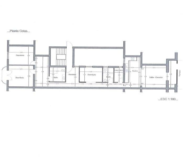
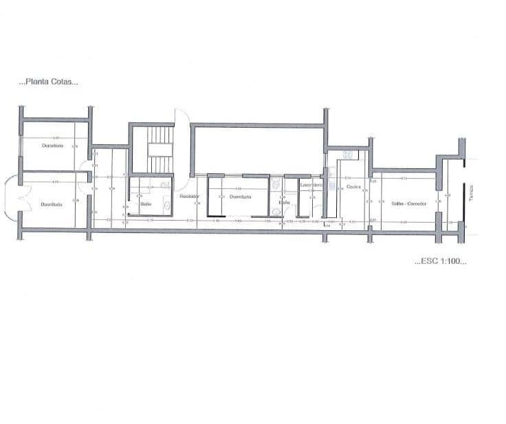
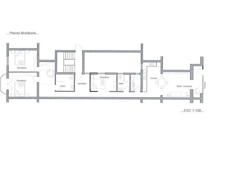
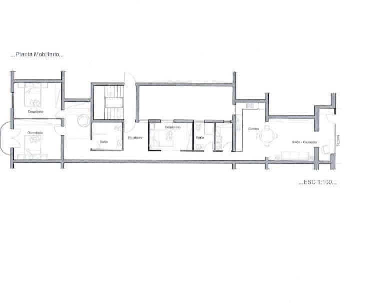
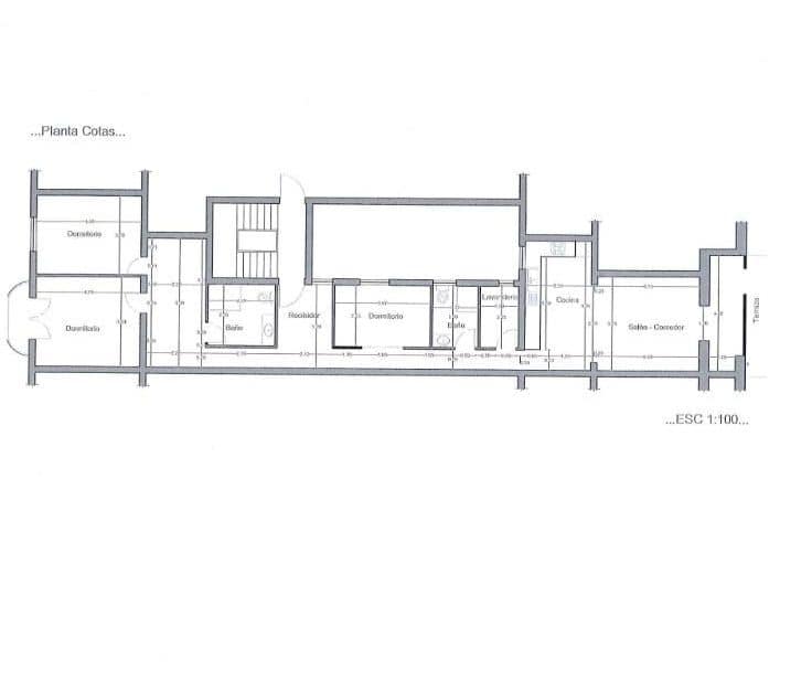
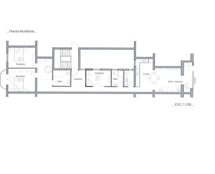
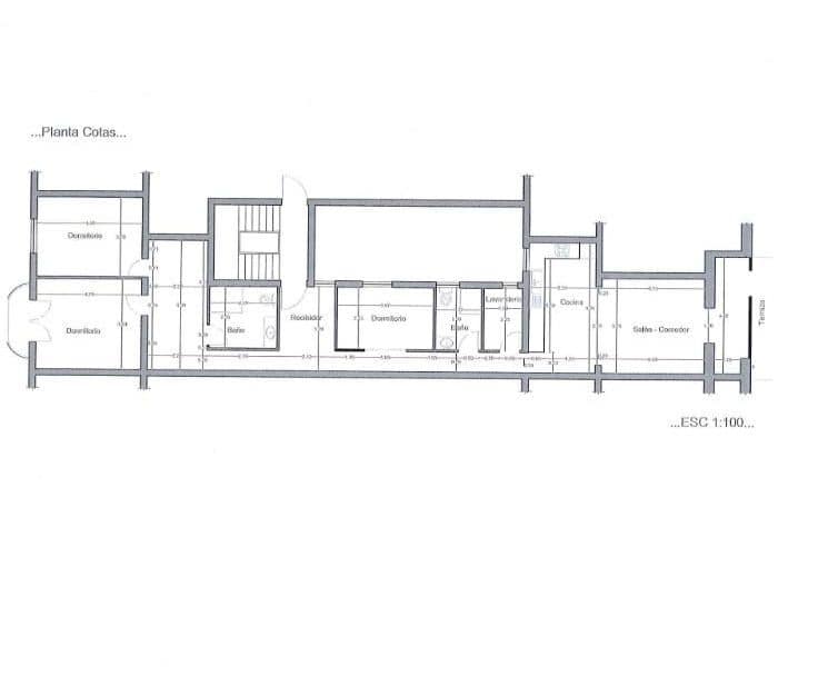
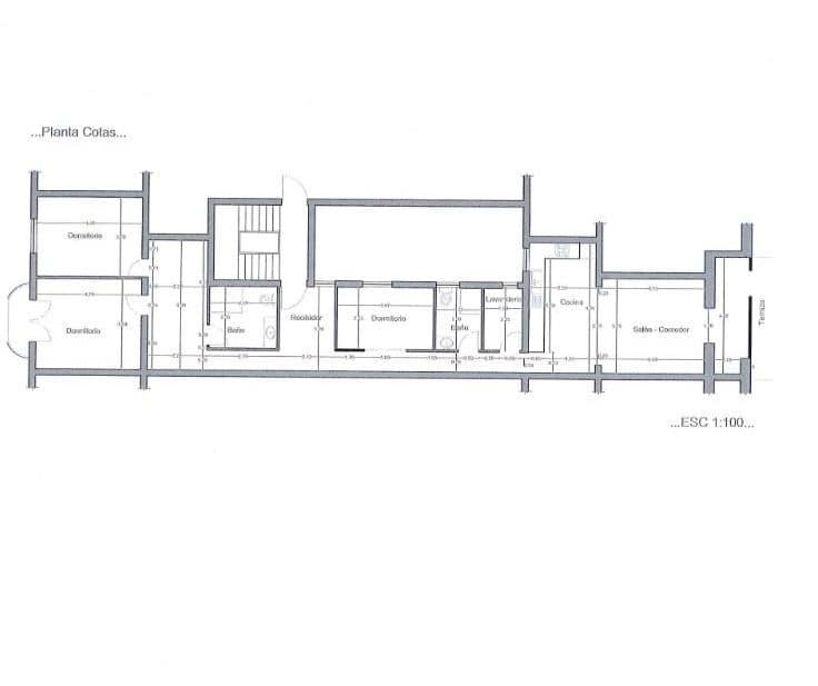
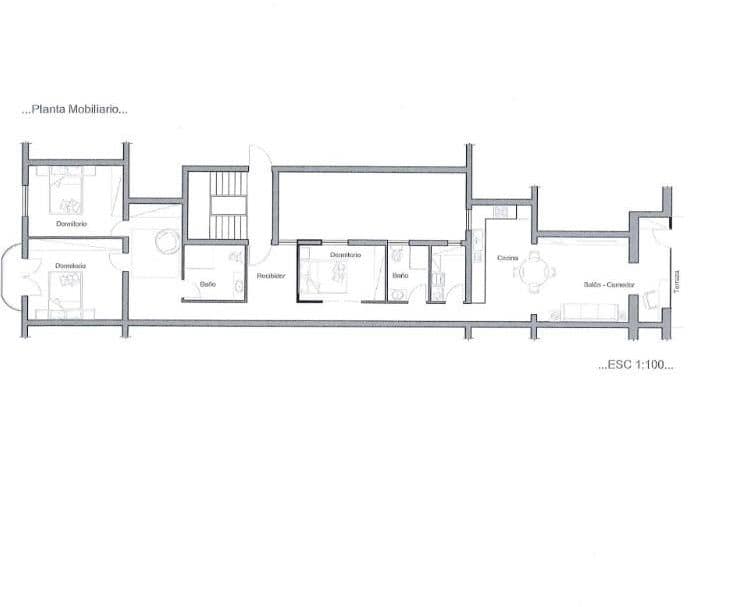
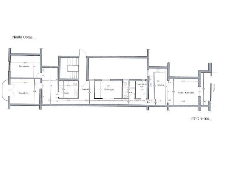
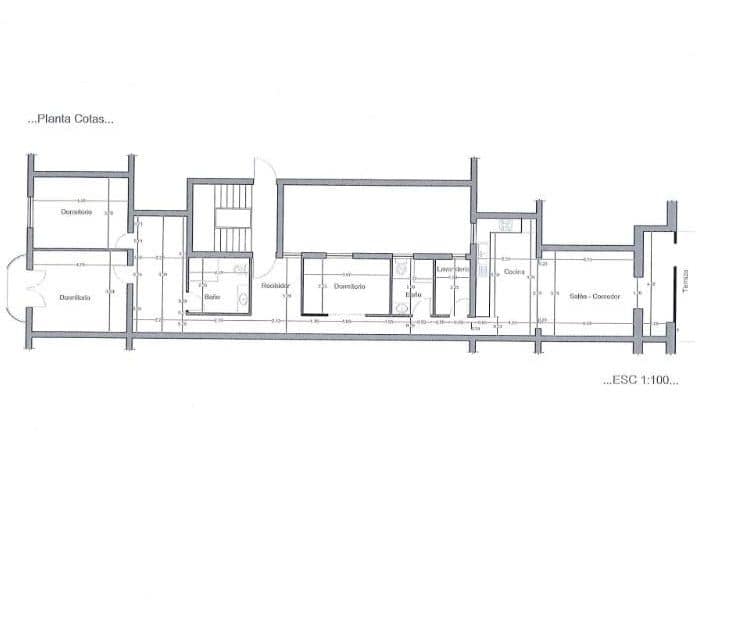
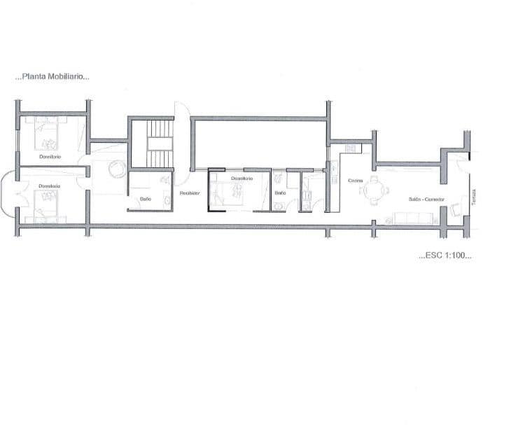
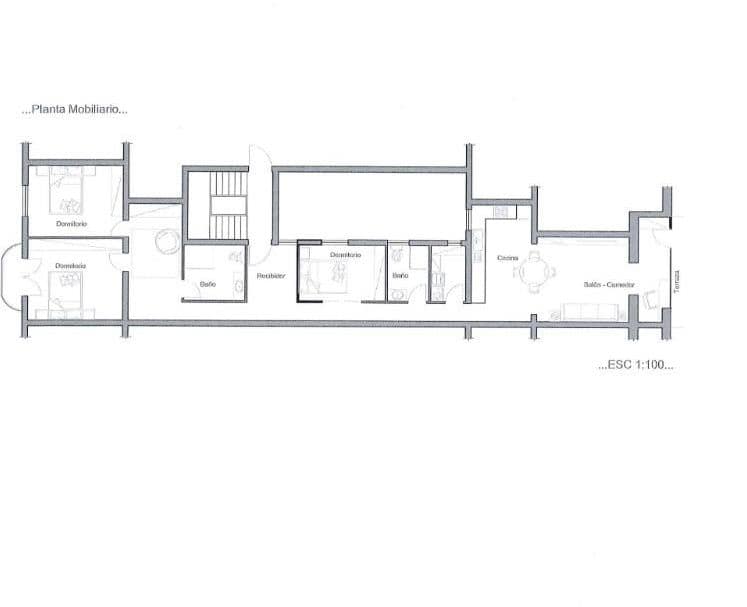
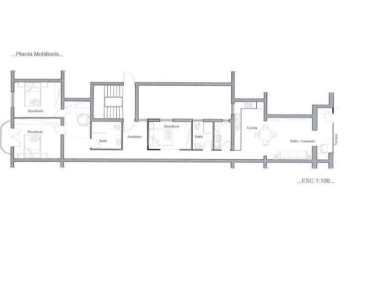
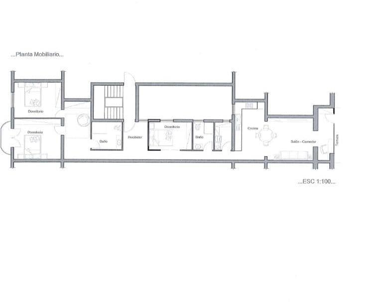
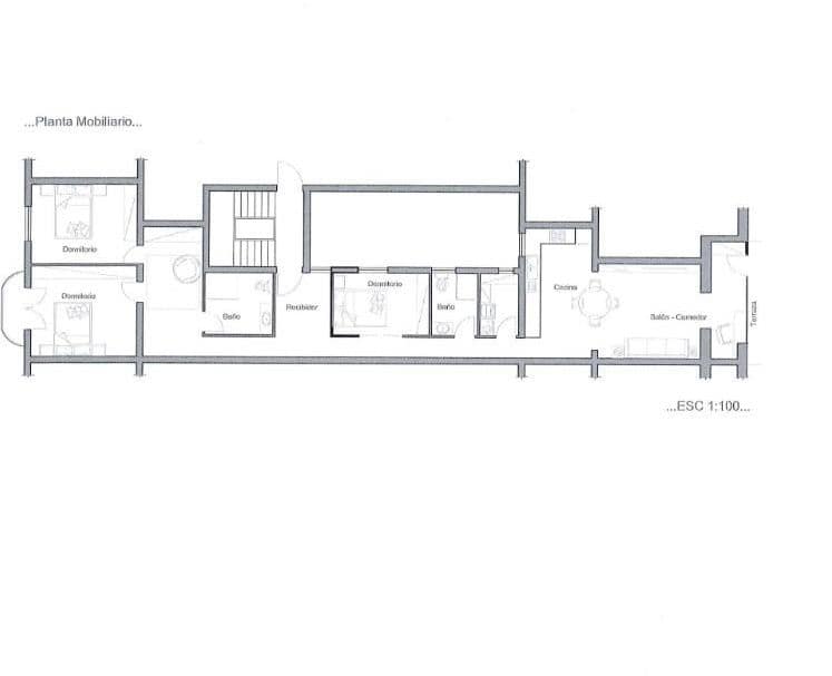
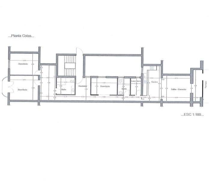
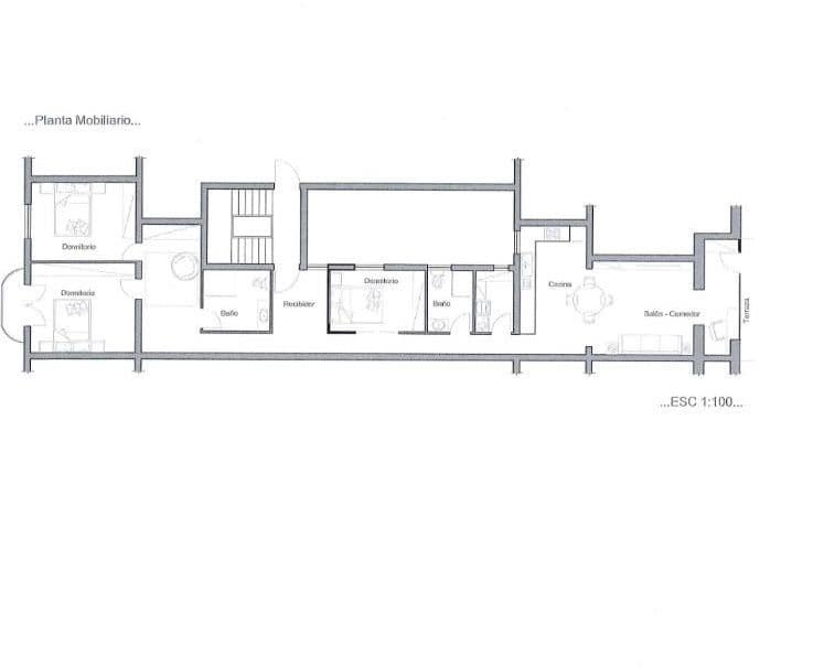
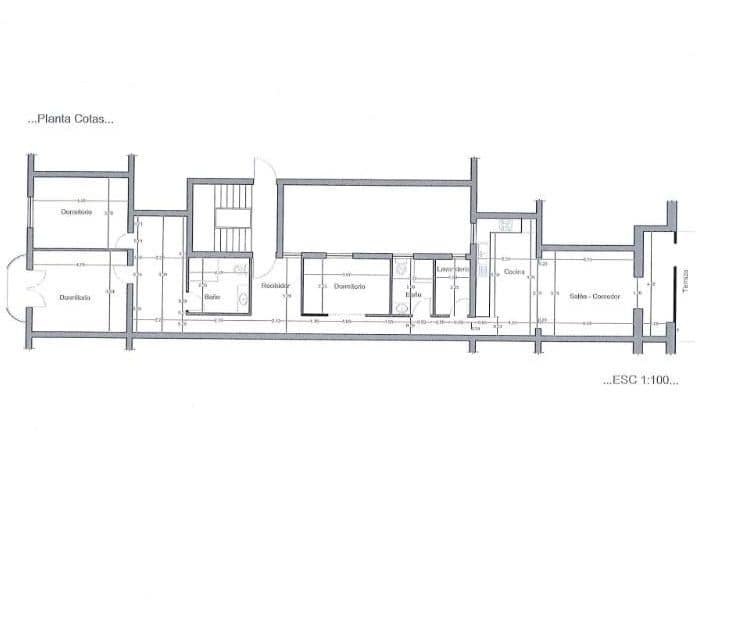
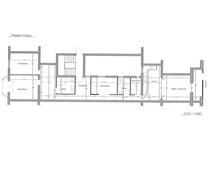
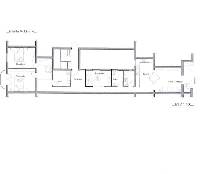
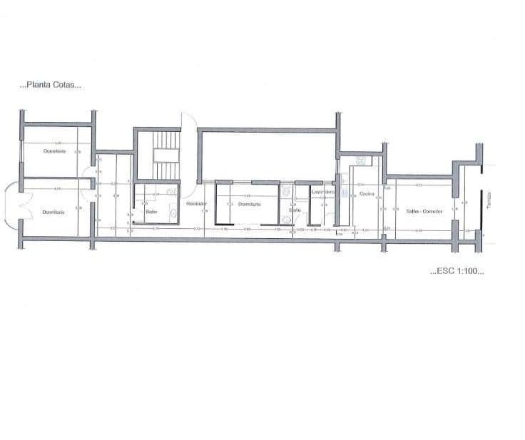
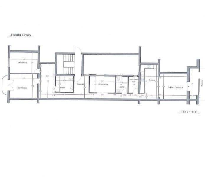
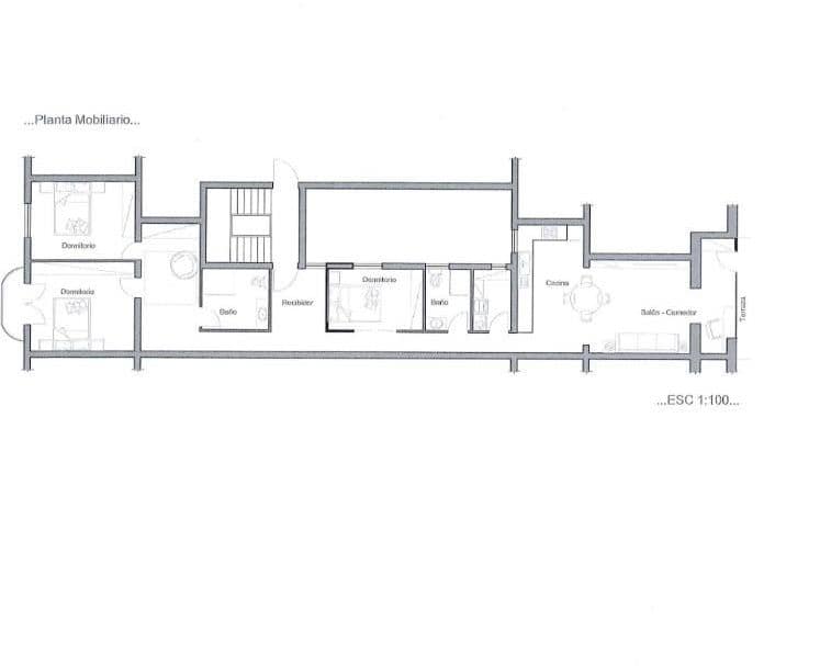
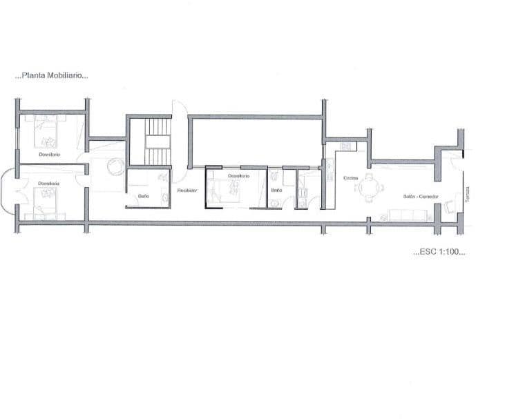
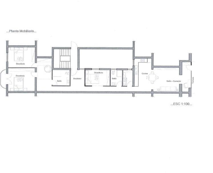
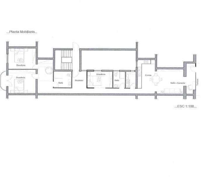
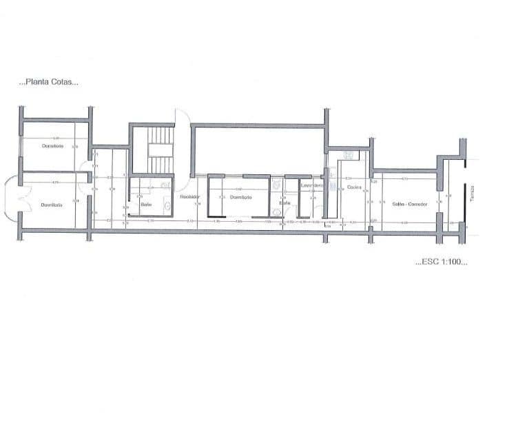
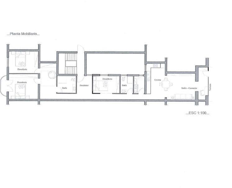
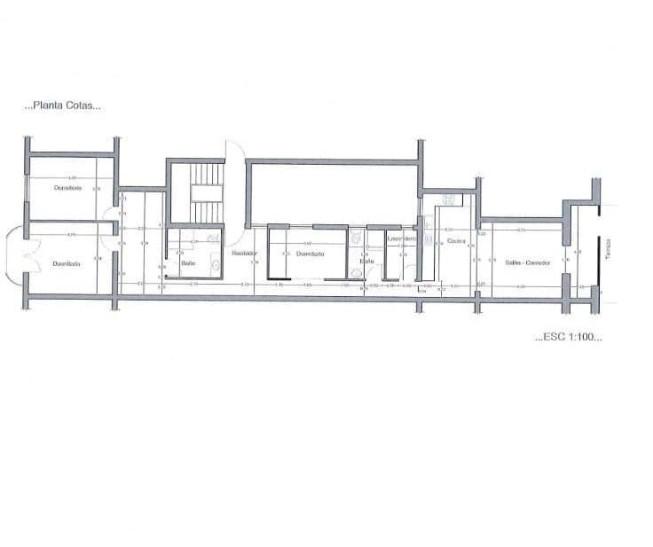
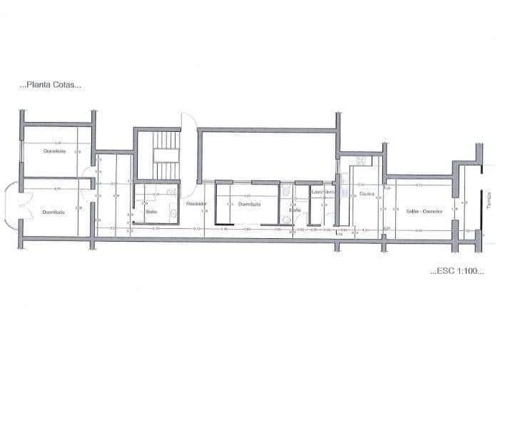
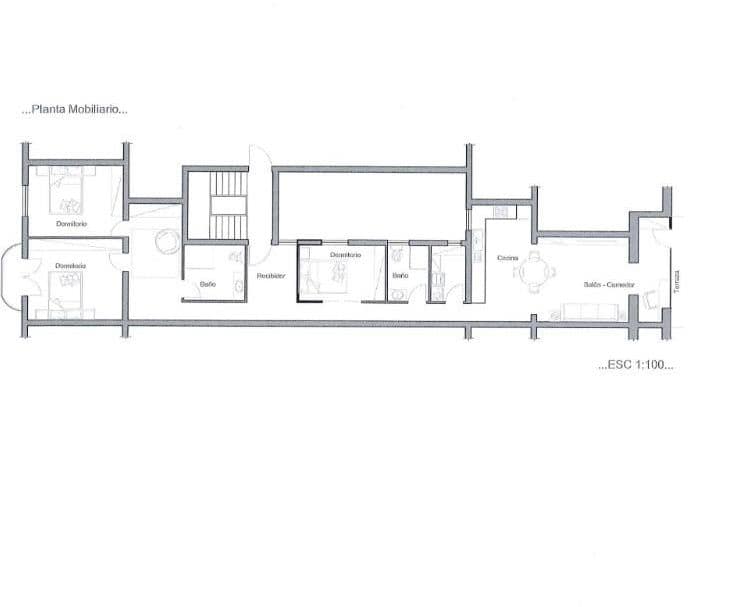
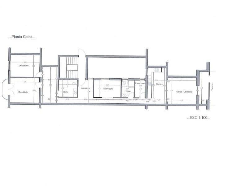
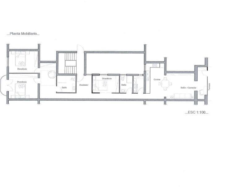
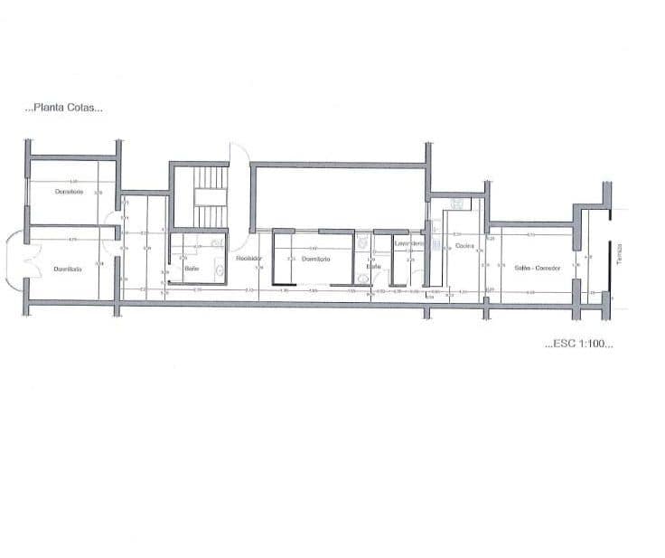
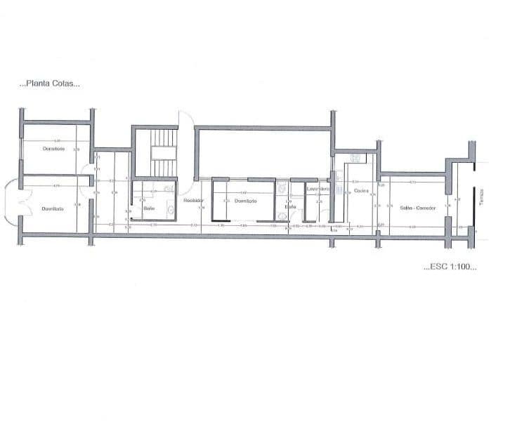
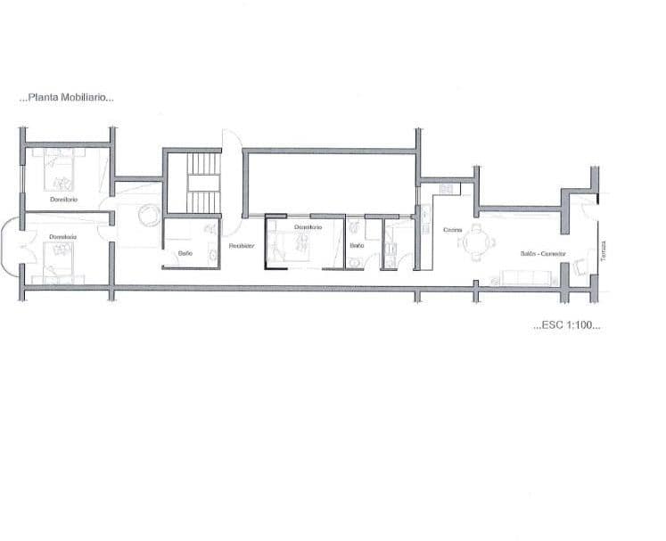
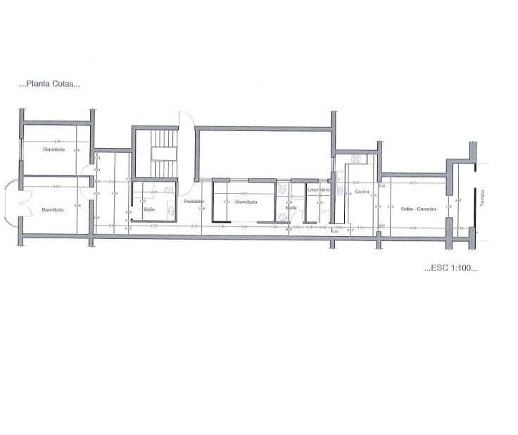
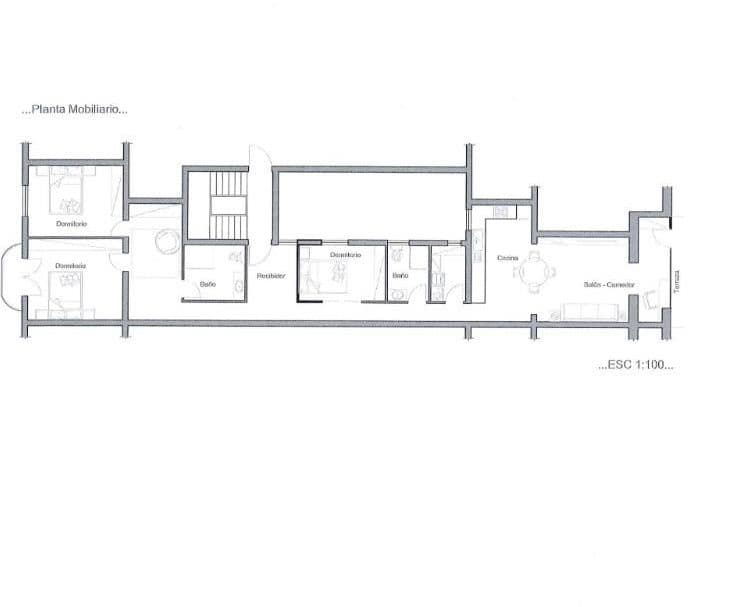
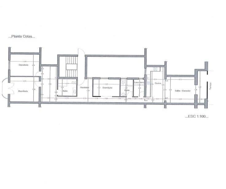
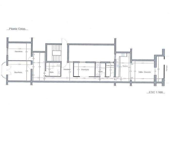
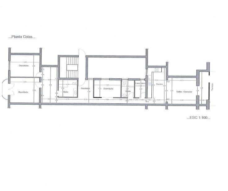
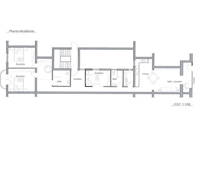
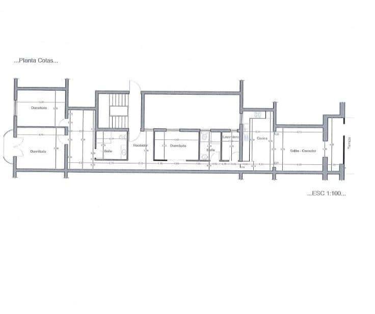
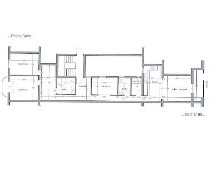
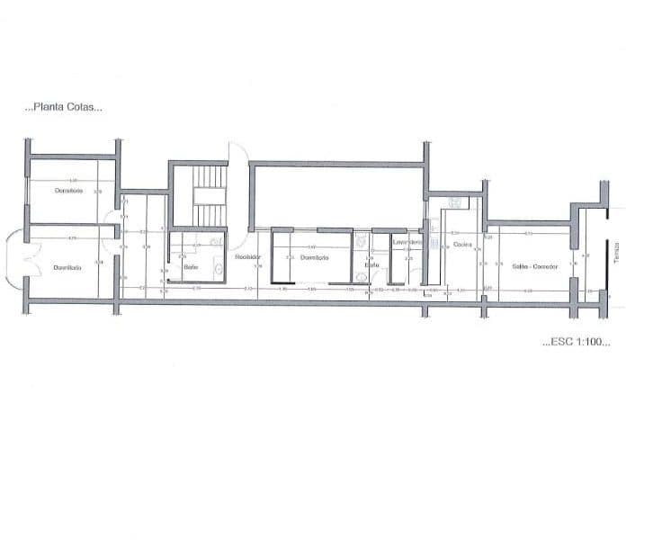
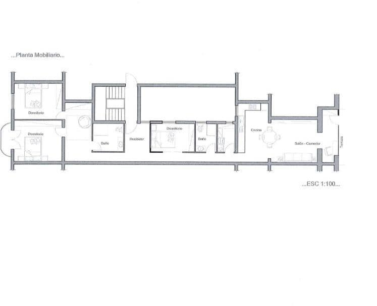
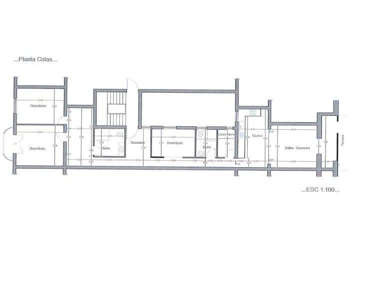
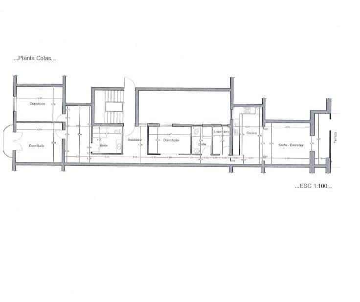
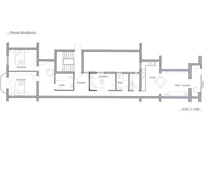
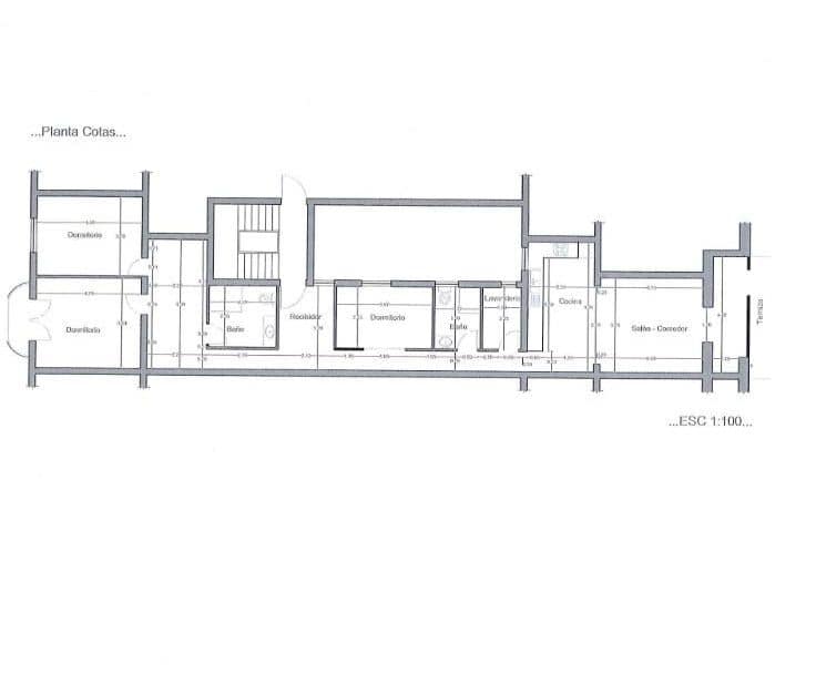
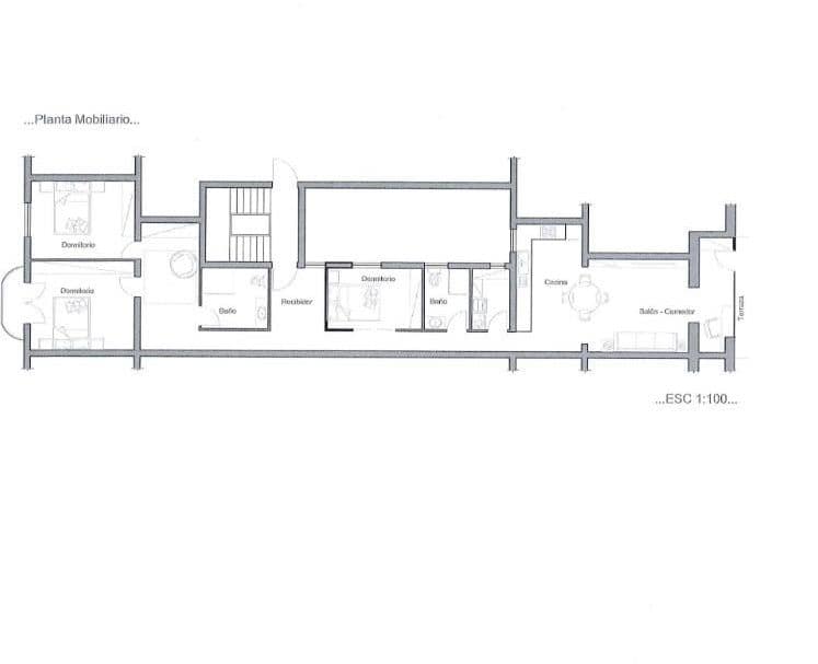
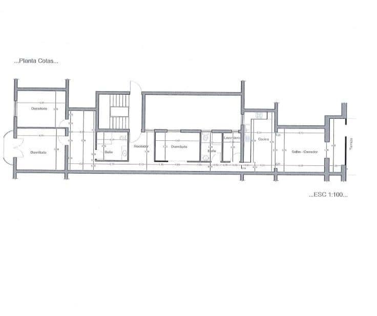
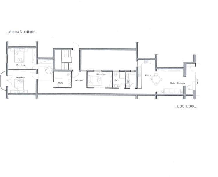
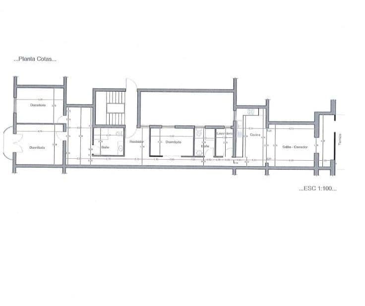
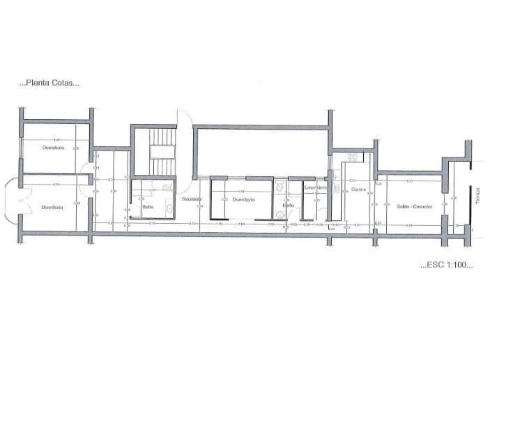
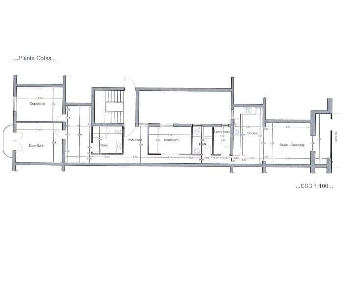
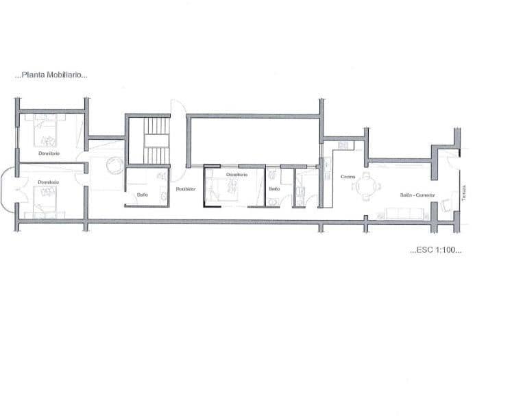
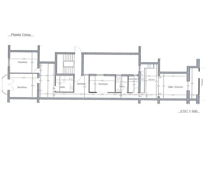
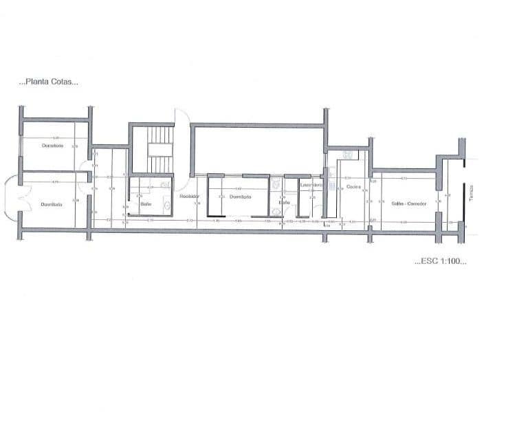
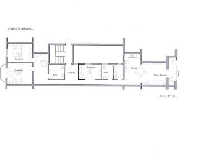
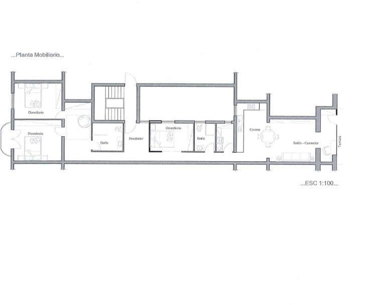
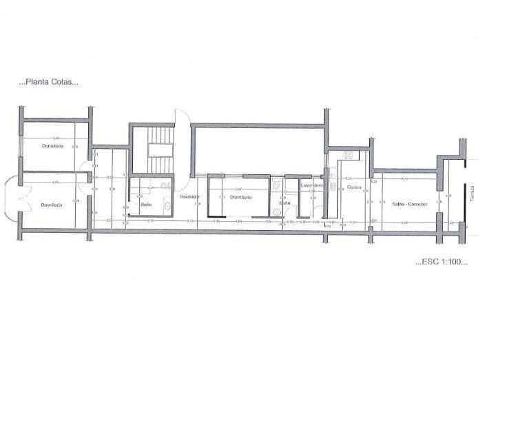
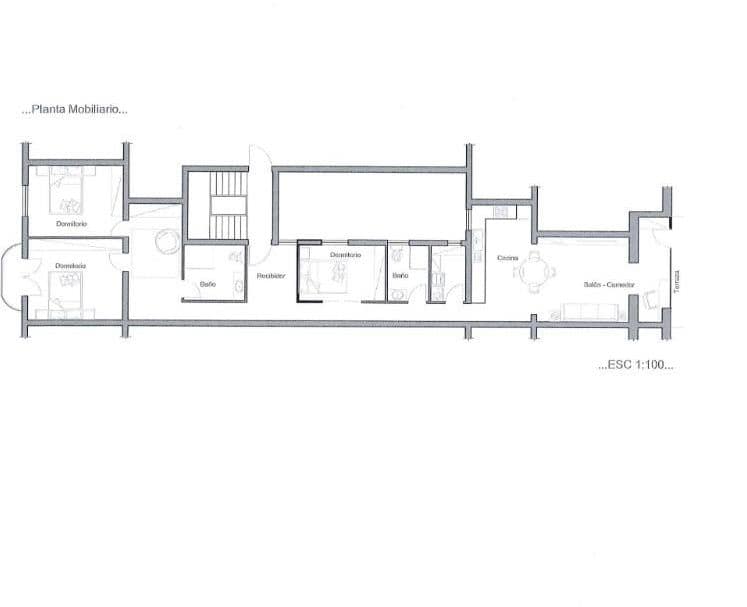
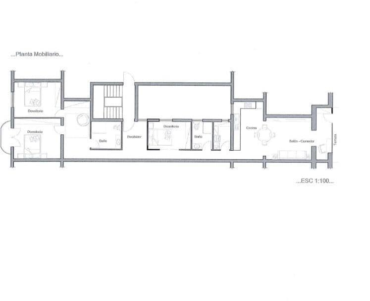
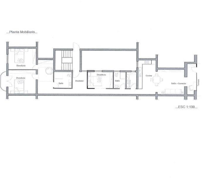
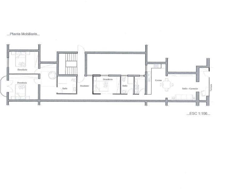
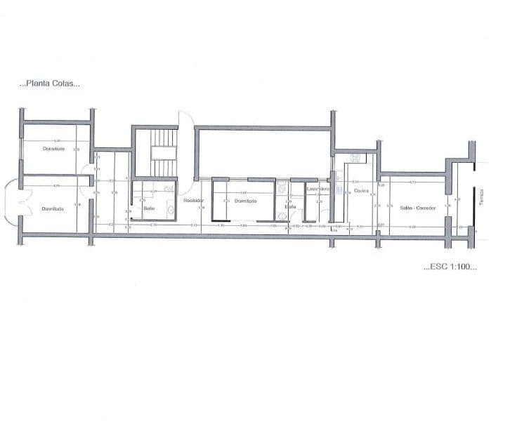
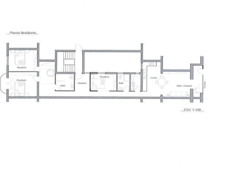
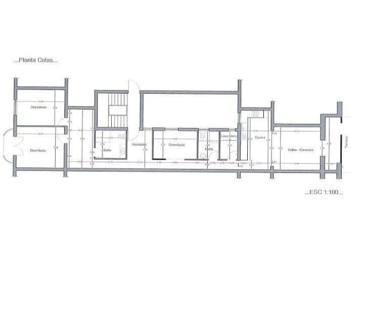
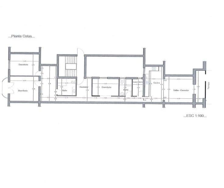
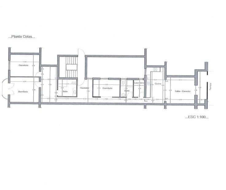
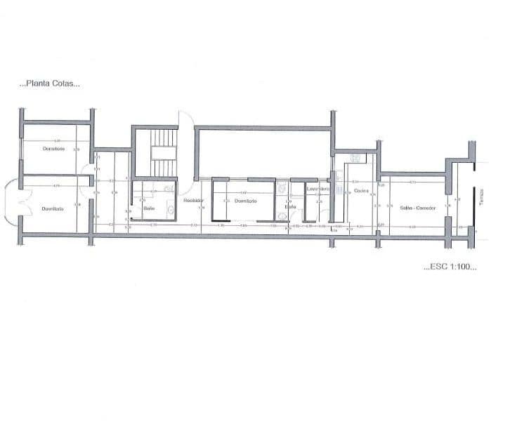
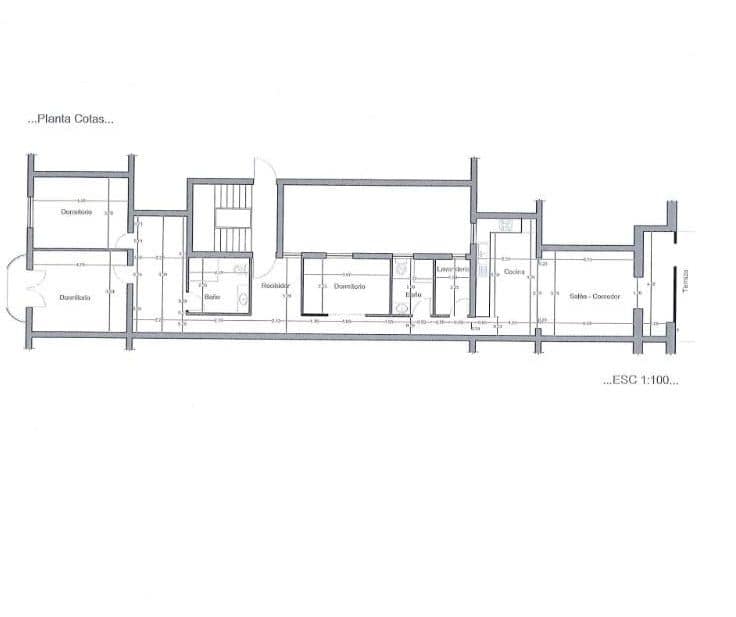
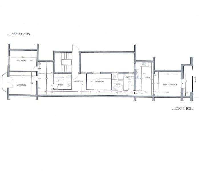
PI Properties Investment presenta esta exclusiva vivienda para reformar en una finca regia catalogada de 1900, situada en el emblemático barrio de L’Antiga Esquerra de l’Eixample en Barcelona. ~Con una superficie de 142 m² y una espectacular terraza privada de 63 m² orientada a patio de manzana, esta propiedad exterior y luminosa cuenta actualmente con 6 habitaciones (3 dobles), techos altos con molduras originales y elementos arquitectónicos de época. ~Es una oportunidad única para diseñar una vivienda a medida desde cero. Se entrega con proyecto de reforma profesional, planos actuales y propuesta de redistribución con imágenes virtuales. La finca cuenta con ITE pasada, certificado de aptitud, cédula de habitabilidad y certificado energético, todo en regla. Además, se ofrece la opción de adquirir una amplia plaza de aparcamiento justo enfrente por 30.000 €. Una joya para quienes buscan ubicación privilegiada, historia, y el lujo de una terraza privada en pleno corazón de Barcelona.~~Desde Pi Properties Investment hemos realizado un proyecto de reforma que usted puede ver en las distintas imágenes que se proporcionan en el anuncio. Hemos incluido planos de la vivienda con la redistribución más apropiada según nuestro departamento técnico así como las imágenes virtuales a modo de ejemplo, consiguiendo una armonía perfecta en cada unas de sus estancias. También adjuntamos plano del estado actual.~~~No dude en visitar esta estupenda y exclusiva vivienda.~
Detalles
Planear una Visita
Información de contacto
Propiedades Similares
- Casa
- €5,995,000
- Dormitorios: 5
- Baños: 5
- 667 sq m
Contact me
- Villa
- €2,950,000
- Dormitorios: 4
- Baños: 5
- 373 sq m
Contact me
- Parcela
- €1,150,000
- Dormitorios: 4
- Baños: 3
- 118 sq m
Contact me
- Villa
- €4,900,000
- Dormitorios: 5
- Baños: 7
- 478 sq m
Contact me
- Villa
- €3,000,000
- Dormitorios: 7
- Baños: 5
- 692 sq m
Contact me
- Villa
- €3,995,000
- Dormitorios: 4
- Baños: 4
- 380 sq m
Contact me
- Villa
- €2,325,000
- Dormitorios: 4
- Baños: 3
- 235 sq m
Contact me
- Ático
- €1,150,000
- Dormitorios: 3
- Baños: 2
- 114 sq m
Contact me
- Villa
- €4,750,000
- Dormitorios: 5
- Baños: 6
- 454 sq m
Contact me
- Ático
- €1,495,000
- Dormitorios: 3
- Baños: 2
- 124 sq m
